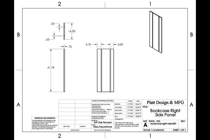
This button goes to the bookcase slider page. This icon goes to the image matrix page. Open Bookcase Assembly drawing pdf file.